19 Selby Lane Atherton
Demo and construction begins on this 10,000 SF Home in Atherton Sept 2025/ 2026
Grove Construction loves Basements! Showing expertise in the construction of Basements; Grading/ forms, Framing and Drainage Woodside, Portola Valley, Atherton and San Carlos
See below! 2024/26
2 Summit Way
Check out these Panoramic Views!
Top of the hills in Emerald Hills
For more information please contact:
Greg Garcia @ Sequioa Realty 650.771.0656
2026/ 2027
COMING SOON! 2026
685 UPLAND
Redwood City
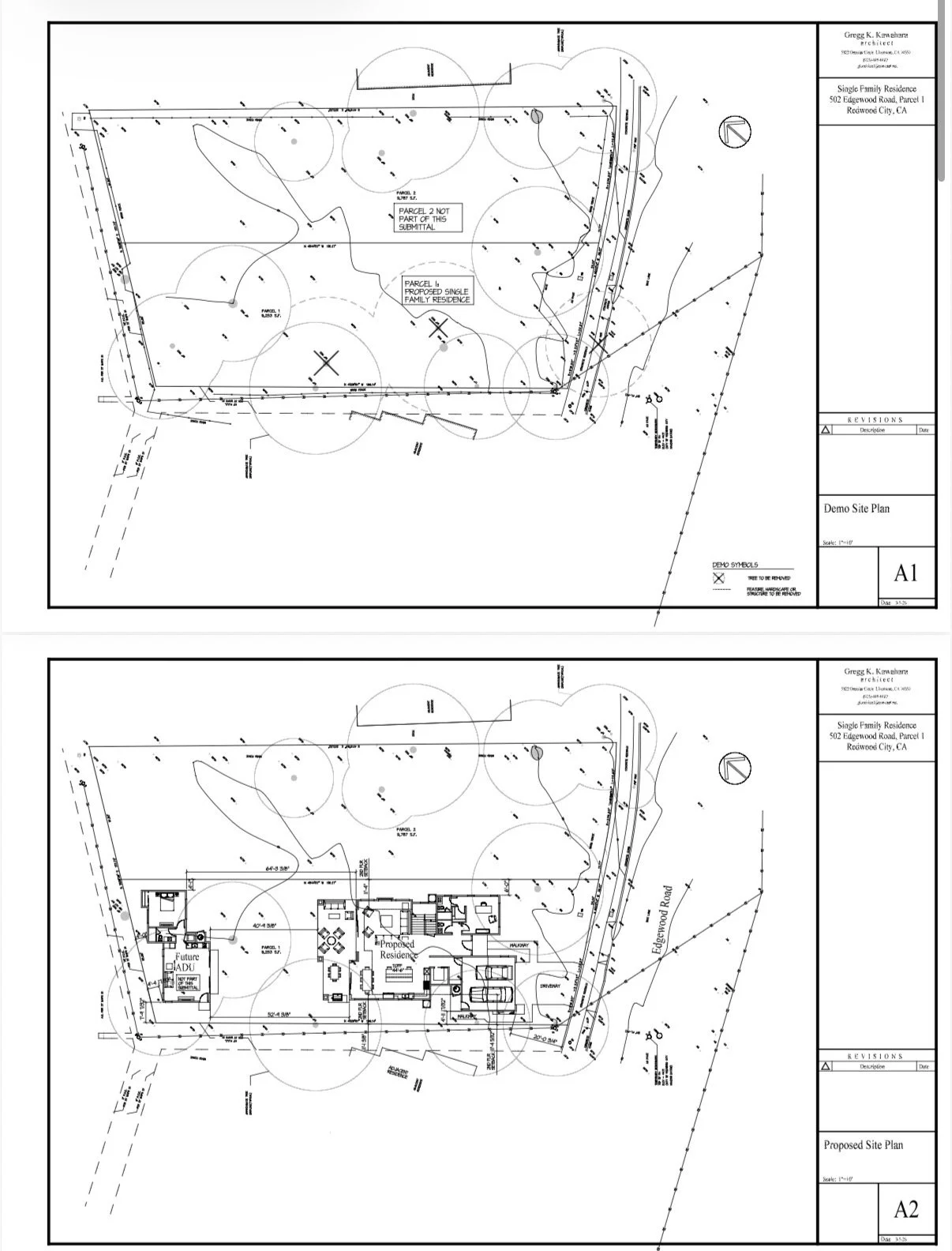
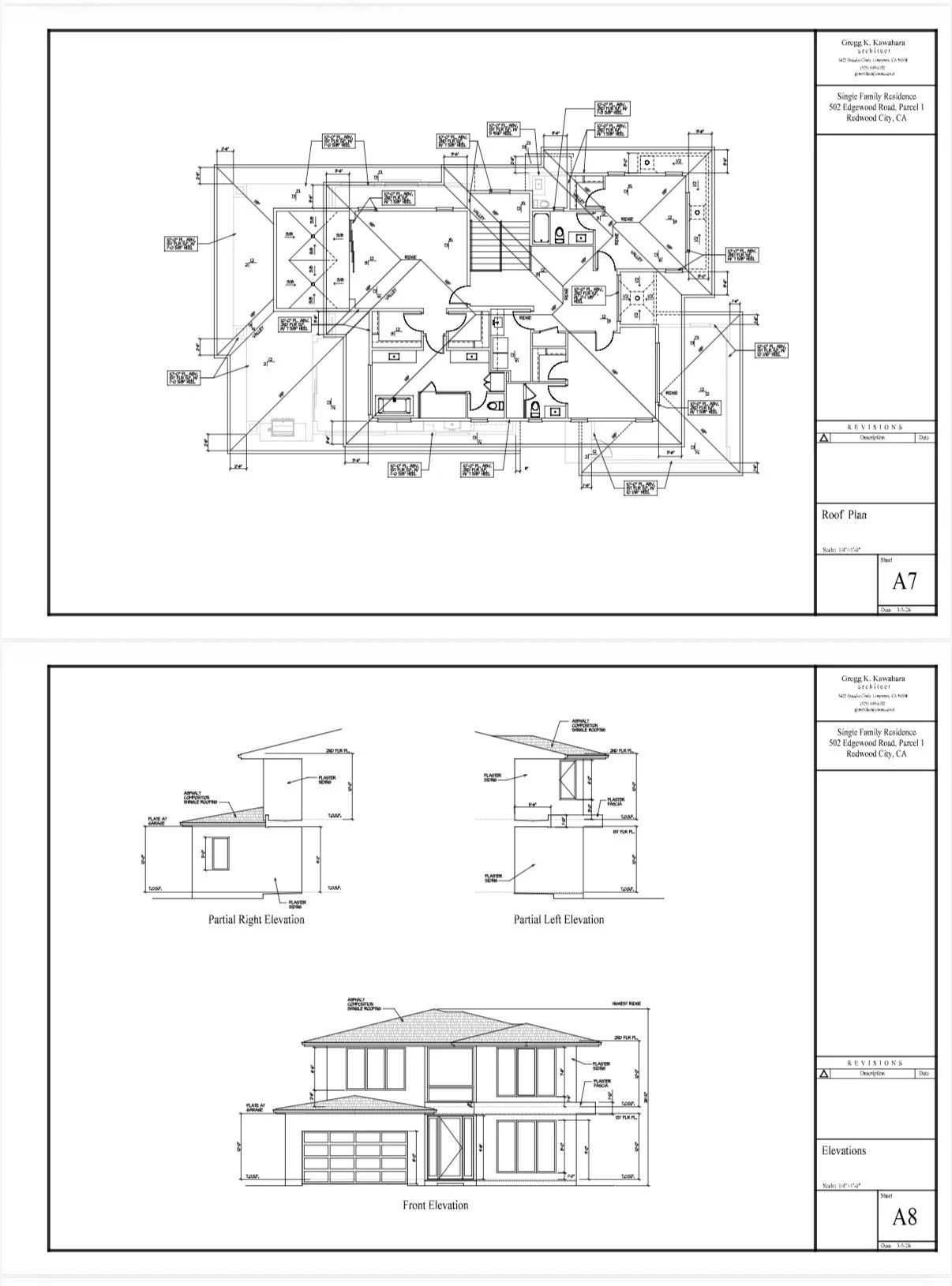
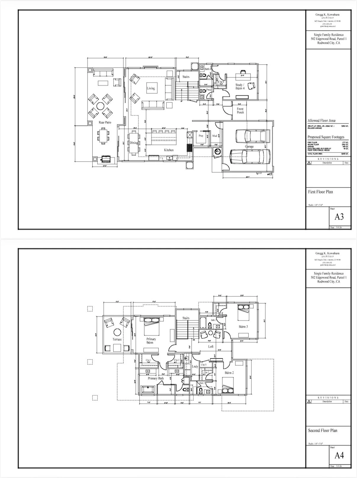
502 Edgewood In Progress! Beautiful Flat Lot in desirable Neighborhood 2026/2027
1019 Wilmington, Emerald Hills Framing In Progress March 2025
SOLD!! Congratulations to the New Homeowners
.
Thanks to the dedication of our hard working crew at Grove Construction, we are on schedule at Wilmington! Sept 2025
On the Market and Move in Ready! October 2025
SOLD November 2025
Stay Tuned for this Beauty in Woodside…..
2150 Greenways Sept 2020
2150 Greenways Complete
2150 Greenways
Breaking Ground in Woodside! September 2020
Foundation Pour Nov 2020 **Video drone credits Greg Garcia Sequoia Realty Redwood City CA
2150 Greenways Framing, Floor Plans and Elevations
2150 Greenways Woodside Completed!
New Home in Woodside Start Date August 2022
2160 Greenways Woodside
Construction Ready
View Lot in Woodside
2160 Greenways
Construction Begins! August 2022
You could live here!
Beautiful home over 3000sf with view lot, ADU and built in swimming pool
2160 Greenways Woodside CA
COMING SOON
Inquiries Welcomed!
Grove Construction 650.839.1194
August 2022
2160 Greenways
Woodside CA
Framing and Build on Schedule!
Swimming Pool, Quiet street with Views….
For more info on this amazing home
Contact: Ron Grove 650.839.1194
June 2023
2160 Greenways is on schedule Update for Nov 2023 Separate ADU Beautiful Swimming pool on a view Lot
2160 Greenways Floor plans and elevations *Click on image below to change frame
Market Ready! Come see this Beauty 2160 Greenways Woodside CA Presented by Greg Garcia Sequoia Realty
752 Hillcrest Emerald Hills Completed May 2019
Grove Construction Is Excited to Announce the start of
Canyon Vista Way in San Carlos
Spacious 5 Home Development in West San Carlos May 2020
THE NEW CANYON VISTA WAY
SAN CARLOS CA
(Formerly Winding Way)
RoadWork Begins Canyon Vista Way San Carlos MAY 2019
Sunsets in Canyon Vista Way
Precision Cement Pour
CANYON VISTA WAY SAN CARLOS (formerly winding way)
5 home Development in Progress May 2019
518 Canyon Vista Way San Carlos Future Home 2020
518 Canyon Vista Way
521 Canyon Vista Way Future Home 2020
528 Canyon Vista Way San Carlos Future Home 2020
538 Canyon Vista Way Future Home 2020
538 Canyon Vista Way
538 Canyon Vista Framed January 2021
SOLD!!!
pre-construction 2020
558 Canyon Vista
558 Canyon Vista Way Front Street View Sold!! Preconstruction
Clearing the Hillside at Winding Way
Winding way San Carlos
May 2020 Cement Pour
May 2020 Cement Pour Drone Video credits Greg Garcia
151 Eleanor Woodside Tear Down and New Home Built
Beatiful Job in woodside CA
Completed 2021
BEFORE
June 2020
AFTER
Dec 2021
Foundation and Framing on schedule August 2019
Great Progress on Eleanor in Woodside March 2020
Nearing Completion on Eleanor Final Photos to come December 2020
WALNUT STREET APARTMENTS Construction Begins 2019
Walnut Street Apartments
INSTALLING ELEVATORS AND FRAMING
WALNUT STREET APARTMENTS
